- 雷达液位计料位计系列产品
- 压力/液位/差压/密度变送器
- 液位仪表系列
- 流量仪表系列
- 物位仪表系列
- 液位/温度/压力/流量-报警仪
- PLC/DCS自动化控制监控系统
- GPRS无线远传装置
- 有纸/无纸记录仪系列
- 温度仪表系列
- 分析仪|检测仪|校验仪系列
全国销售热线:400-9280-163
电话:86 0517-86917118
传真:86 0517-86899586
销售经理:1560-1403-222 (丁经理)
139-1518-1149 (袁经理)
业务QQ:2942808253 / 762657048
网址:https://www.harzkj.com
电话:86 0517-86917118
传真:86 0517-86899586
销售经理:1560-1403-222 (丁经理)
139-1518-1149 (袁经理)
业务QQ:2942808253 / 762657048
网址:https://www.harzkj.com
应用于制药企业生产中的液位检测技术的种类及选择指导
发表时间:2018-09-18 点击次数:1378 技术支持:1560-1403-222
前言:
制药企业生产中会应用到非常多的液位测量仪表,无论是从原料的储运,还是中间体,成品,都离不开对于液位的计量,本文简要介绍了制药企业用于液位监测的直接检测技术,着重阐述了液位间接检测技术中压力法、浮力法、电学法、超声波法、雷达法、音叉振动法的原理及其相应液位计的特点,为制药企业在选择液位检测技术时提供参考。
0 引言
随着智能制造时代的到来,以质量为生命线的制药企业如何搭载“智能制造”这趟快车,是众多制药企业面临的重大课题。在智能化生产过程中,液位检测和监控在医药、饮料等行业的生产中扮演着重要的角色,液位监控直接影响到产品的质量,甚至关系到生产过程能否顺利进行。同时,液位检测设备作为一种重要的计量器具,是生产过程安全、受控的重要保证要素之一。合格的液位检测设备、过硬的液位检测技术,不仅为制药企业的原辅料、半成品和成品质量保驾护航,还在GMP的实施过程中有着举足轻重的地位。因此,为了保障产品质量的一致性,只有科学地选择液位检测技术,才能保障检测结果的可靠性、稳定性。
1 液位检测技术
液位检测总体上可以分为直接检测和间接检测两种方法。直接检测法是一种简单、直观的液位检测方法,它是利用连通器的工作原理,将容器中的液体引入带有标尺的观察管中,通过标尺读出液位高度。
间接检测法是将液位信号转化为其他相关的信号进行测量的方法。
2 直接检测技术
玻璃管液位计是一种直读式液位测量仪表,属直接检测技术,其使用原理如图1所示,可用于制药企业生产过程中一般储液罐和静置罐中液位的现场检测或者普通实验室的液位测量。
优点:结构简单,测量直观,是传统的现场液位测量工具。
缺点:其材质容易破损,且不易于清洁,长时间使用会影响指示清晰度。现在该液位计已经不常用了。

3 间接检测技术
制药生产通常是一个系统而复杂的过程,现场测量的环境和条件也较复杂、特殊,因此多采用间接检测技术进行液位检测,如压力法、浮力法、电学法等。
3.1 压力法检测技术
压力法检测技术是依据液体重量所产生的压力进行测量。由于液体对容器底面产生的静压力与液体高度成正比,因此通过测量容器中液体的压力即可测算出液位高度。
(1)用于测量开口容器液位高度的压力式液位计有三种,即润中压力表式液位计、润中法兰式液位变送器、吹气式液位计。
(2)用于密闭容器中的液位测量时,需要使用差压式液位计,它可在测量过程中消除液面上部气压以及气压波动对显示值的影响。

差压式液位计工作原理如图2所示。
静压式液位计的工作原理是通过安装于底部的压力传感器检测底部液体压力,再转换计算出液位高度,底部液体压力的参考值为与顶部连通的大气压或者已知气压。静压式液位计的检测方式是接触式检测,要求采用高精度、齐平式压力传感器,同时换算过程需要不断校准。
优点:检测不受液位高度限制,测量液位时,完全不受气包或容器内装部件的影响。
缺点:液位高度越高,对传感器的精度要求也越高,长时间使用或者更换液体时需要重复校准,不适用于介质密度和温度变化明显的环境。
3.2 浮力法检测技术
浮力法检测技术是依据力平衡原理,通常借助做成空心体的浮子类悬浮物,使它在平衡时能够浮于液面。浮子会随液位高度的变化而在液面上下移动,所以测出浮子的位移即可知液位的变化量。浮子式液位计按浮子形状不同,可分为浮子式、浮筒式两种,具体的液位计有钢带浮子式液位计、浮筒式液位计、磁浮子液位计(如磁翻板液位计)。在制药行业中常将磁翻板液位计用于储液罐、发酵罐等储液设备上。润中磁翻板液位计是根据浮力原理和磁性耦合作用工作的,如图3所示,它可用于各种塔、罐、槽、球型容器和锅炉等设备的介质液位检测。当被测容器中的液位升降时,液位计主导管中的浮子也随之升降,浮子内的**磁钢通过磁耦合传递到现场指示器,驱动红、白翻柱翻转180 ° 。

当液位上升时,翻柱由白色转为红色;当液位下降时,翻柱由红色转为白色。指示器的红、白界位处为容器内介质液位的实际高度,从而实现液位的指示。
优点:磁翻板液位计可以实现高度密封,防泄漏,适用于高温、高压、耐腐蚀的场合。它弥补了玻璃板(管)液位计指示清晰度差、易破裂等缺陷,且全过程测量无盲区,显示清晰,测量范围广。
缺点:价格较高,工作压力不能太高,并随液体的密度不同,其浮子在液体中的高度也不同,需要以实际介质进行标定。
3.3 电学法检测技术
电学法检测技术按工作原理不同可分为电阻式、电感式和电容式液位计。电学法检测技术没有摩擦件和可动部件,信号转换、传送方便,便于远程传输,稳定可靠,且输出可转换为统一的电信号,与电动单元组合仪表配合使用,可方便地实现液位的自动检测和自动控制。


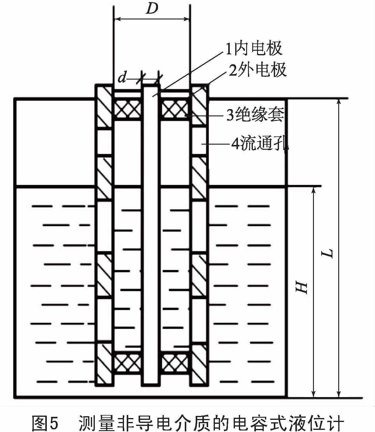
制药行业常用的是电容式液位计。电容式液位计利用液位高低变化影响电容器电容量大小的原理进行测量,液位变化引起等效介电常数变化,从而使电容器的电容量变化。润中电容式液位计的适用范围非常**,既能测量导电介质(图4)和非导电介质(图5)的液位,又可测量强腐蚀性介质、高温介质、密封容器的液位,与介质的黏度、密度、工作压力无关。
测量导电介质的电容式液位计测量非导电介质的电容式液位计
此外,电容式液位计还能测量倾斜晃动和高速运动的容器的液位,可作为一种连续测量的液位控制器。
虽然电容式液位计价格较低,安装容易,但是电容传感器容易受到不同容器材质和溶液属性的影响,测量重复精度较低,需定期维修和重新标定,使用寿命也不长。
3.4 超声波法检测技术
超声波法检测技术是将较短的超声波脉冲发送到被测物质,这些脉冲被介质表面反射并被传感器重新接收,测量仪表利用声波所需的运行时间和输入的容器高度可以计算出液位。
超声波液位计利用波在介质中传播的特性,具备安装容易、灵活性高等特点,通常可安装于高处进行非接触式测量。但是,其容易受到超声波传播的能量损耗影响。
具体点说,超声波在传播中遇到相界面时,有一部分反射回来,另一部分则折射入相邻介质中。当它由气体传播到液体或固体中,或者由固体、液体传播到空气中时,由于介质密度相差太大而几乎全部发生反射,且当超声波液位计使用于含蒸汽、粉尘等环境中时,检测距离将会明显缩短,所以不建议在吸波(如泡沫等)环境中使用超声波液位计。
气介式超声波液位计液介式超声波液位计固介式超声波液位计
在制药行业中,超声波液位计主要应用于储罐和开口水池。由于超声波可以在不同介质中传播,所以超声波液位计可分为气介式(图6)、液介式(图7)、固介式(图8)三种,常用的是气介式和液介式超声波液位计。按超声探头的不同工作方式,超声波液位计又可分为自发自收的单探头和收发分开的双探头两种,一般多采用单探头超声波液位计,因为其结构简单、安装方便,维修工作量也较小,而且它可直接测出距离,不必校准。


3.5 雷达法检测技术
雷达液位计工作原理如图9所示。在制药行业通常将雷达液位计应用于提取罐、水液储罐、酸碱储罐、浆料储罐、小型储油罐等设备上。润中雷达液位计通过天线系统朝介质的方向发射短促的雷达脉冲,介质表面反射信号波,随后被天线系统重新接收,测量仪表利用雷达脉冲所需的运行时间和输入的容器高度可以计算出液位高度。雷达液位计可测量腐蚀性介质,对卫生要求很高的场合同样适用,还适用于各种含泡沫的液位检测,不受液体颜色影响,甚至可应用于高黏性液体,不受粘附物或冷凝物的影响,不受噪音、蒸汽、粉尘、真空等工况影响,受外部环境干扰相对较小。其安装方式有多种选择:顶部安装、侧面安装、旁通管安装、导波管安装。
雷达液位计工作原理
优点:可用于液体的非接触式检测,测量精度很高,调整过程非常简单,无需充填和排空容器,节约时间,可实现自动化液位监测。
缺点:价格昂贵。
3.6 音叉振动法检测技术
音叉式液位测量仅为开关量输出,不能用于连续性监控液体高度。音叉液位限位开关的工作原理为:当液体填充两个振动叉时,共振频率改变,依靠检测频率改变而发出开关信号。具体来说,振动元件(音叉)在压电陶瓷的驱动下,以一定的机械谐振频率振动,压电陶瓷被机械固定,因此不受温度骤变的限制。一旦振动元件接触到被测介质,振动频率即会改变,一体式的电子部件检测到这个振动频率的变化,并转换开关命令,从而达到液位报警或控制的目的。
音叉液位限位开关的特点:价格较低,灵敏度高,体积小,重量轻,安装方便,适应性强,被测液体不同的电参数、密度对测量均不产生影响,中等黏度、高温、高压等恶劣条件对检测也不会产生影响。开关的检测由电子电路完成,无活动部件,所以音叉液位限位开关一经安装投运便不需特殊维护保养,当有过多被测介质污染和粘附音叉时,清理掉即可,但在有泡沫存在的场合则需要进行现场调校。

4 结语
一种良好的液位检测技术应该在满足工艺要求的前提下,不但需确保测量稳定、安全可靠,而且要安装便捷、维护简单、经济实惠。制药企业在选择液位检测技术和液位计时应考虑的因素包括:
(1)测量对象,被测液体的物理、化学性质,如酸碱性、导电性、是否产生泡沫以及应用环境的压力和温度范围等。
(2)测量和控制要求,是液位式测量还是连续式测量,是接触式还是非接触式测量,以及测量范围和精度、安全可靠性和施工便捷性。
(3)成本低。
随着自动化仪表技术的发展,选择测量液位的方法及相应的仪表也在不断改进和更新,目前还没有哪一种液位测量技术能够适应所有的介质或环境。而制药过程需要通过实时监测、自动控制、调度管理,以达到降本增效、确保安全的目的,这就要求制药企业根据测量要求和使用环境,针对每种测量方式的特点和优点,认真调研求证,科学地选择液位检测技术及相应的检测仪表,以保障检测的可靠性、稳定性。
上一条:电磁流量计在淡浓碱生产中流量测量的案例分析
下一条:变径整流器在涡街流量计的流量测量中的作用及应用介绍
- 相关文章
-
- 雷达液位计的作用 【2025-11-18】
- 雷达液位计使用注意事项 【2025-11-18】
- 雷达液位计安装注意事项全解析 【2025-11-14】
- 雷达液位计工作原理及相关说明 【2025-11-14】
- 创新战略引领磁翻板液位计技术革新 润中科技发展后劲十足 【2014-09-13】
- 如何保证污水电磁流量计测量性能的具体措施 【2015-05-06】
- 超声波液位计在进行高精度测量时为什么需要进行温压补偿 【2022-05-12】
- 分析天然气流量计取压方式对检定结果的影响及优化措施 【2016-04-25】
- 管道流体介质性质对于超声波流量计的影响及仪表相关防护等级说明 【2015-04-02】
- 浅析润中仪表科技雷达液位计技术原理与优点特性 【2014-10-07】








